The EIT Building has a number of multi-use rooms and wired classrooms available for reservation.
EIT Classroom Information
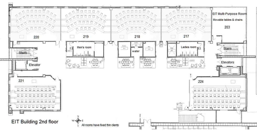
2nd Floor Classrooms
Capacity:37-40 per room
Classrooms available for reservation on the 2nd floor are 220, 219, 218, 217, 221, and 224.
Rooms 217, 218, and 219 are equipped with enhanced technology that provides live webinar ability with 2-way audio and visual.
2nd Floor Layout

3rd Floor Classrooms
Capacity:37-40 per room
Classrooms available for reservation on the 3rd floor are 321, 320, 318, 318, 322, 323, 324, and 325.
3rd Floor Layout

EIT 203 – General Purpose Meeting Room

Capacity:50 Room 203 is the EIT general purpose meeting room equipped with a projector and movable tables and chairs.
EIT Auditorium

Capacity: 200 The EIT Auditorium is a modern presentation hall which seats 200 and provides state-of-the-art technology for conferences and meetings with an advanced audiovisual system and an electrical outlet and network port at each seat. No food or drinks are allowed in the Auditorium.
EIT Lobby
The EIT Lobby is an excellent space for a variety of uses and is an excellent location for exhibits, demonstrations, ticket sales, drawings, and provides a great location for catering setups.
How to Reserve
https://east.mymazevo.com/create-event
If an event of academic or University/College importance comes up and needs to take priority we reserve the right to cancel any reservation to accommodate.
Event Reservations will only be approved if submitted by the full-time (benefits eligible) UA Little Rock employee Sponsor. Mazevo (booking software) makes it easy to communicate directly and efficiently regarding the event.
Sponsor must read, understand, and execute successfully any University Policies regarding Non-Academic Use of an Academic Space…these are conveniently attached on the next page.
As Sponsor, YOU are responsible for:
- Being present for student events
- Being the point of contact for space access, as well as locking up afterwards
- Being the point of contact for technology questions and assistance (via [email protected])
- Any other arrangements your group will need (tables/chairs/etc.)
NO FOOD OR DRINK IN THE CLASSROOM OR AUDITORIUM SPACE
We allow food and drink in the lobby areas of floors 1-4, and all food needs either a Sodexo Catering Waiver or to be catered directly by Sodexo. If you do not follow this policy, Sodexo reserves the right to invoice you for the waiver.
No selling of any kind, including concessions or raffle tickets.
Services
- Audio/Visual technology Computer (with cd drive and usb ports), projectors, screens, DVD/blu-ray player, and amplification equipment are available for use. We are unable to provide technical support. To be sure your event is a success, you must do a run-through of your program at least 3 days in advance. Any questions pertaining to technology or equipment in the Classroom or Auditorium need to be directed at [email protected].
- Catering is available through UA Little Rock Catering Services (501-916-6658). Users of the EIT Auditorium may not sell food or drinks. If refreshments are to be served, you must make arrangements with UA Little Rock Catering Services. Catering may be set up in the lobby in the EIT building. Absolutely no food or drink is permitted inside the EIT Auditorium.
- Parking arrangements must be made through UA Little Rock ’s Department of Public Safety (501-916-5304). You should also contact Public Safety if the room is locked or if the temperature needs adjusting.
- If you need assistance during your visit, please refer to this document.
Policies
We recommend that you print this policy for reference during your event.
All reservations must be submitted 2 weeks prior to the event and cancellations within 72 hours of the scheduled event. Student thesis or dissertation reservations must be submitted 1 week in advance.
We are unable to provide event-side technical support. To be sure your event is a success, you must do a run-through of your program at least 3 days in advance. All reservations are initially tentatively scheduled and will be confirmed after training is completed on equipment to be used, if applicable. It is the responsibility of users to learn how to operate the podium and audio-visual equipment before an event in the EIT building.
DCSTEM does not provide set-up or break-down services. There are ten 6-foot tables and 25 folding chairs in the south equipment room of the Auditorium stage. These tables and chairs must be put up after each use. If there are tables and chairs that are already out prior to your event, you will still be responsible for putting them back.
Please note that the University allows the use of these facilities subject to the restrictions for the use of university property as mandated by policies of the Board of Trustees of the University of Arkansas. For questions, please call the Dean’s Office at 501-916-3333 on weekdays between 8:00 a.m. and 5:00 p.m.
The University is closed on holidays at various times throughout the year. The campus is usually closed the last 2 weeks of December for the holiday break. No reservations will be available during UA Little Rock designated holidays. Please check the holiday schedule listed here.
Users are expected to leave the premises in a neat, undamaged, and orderly condition. The condition of the space used will be evaluated after each event. All areas must be clean with no damage or missing equipment. This includes paper clutter, the stage, and seating areas. Trash bags (not provided) are discarded in the dumpster located in the loading area on the west side of the EIT building.
The EIT Auditorium is reserved as is. The facility provides no dressing rooms, adjacent bathrooms, set storage, or other amenities.
State law prohibits the collection of admission fees on UA Little Rock property with the exception of legitimate university events.
Smoking is not permitted anywhere on UA Little Rock property.
At no time, or for any reason, shall any university property be removed from this building.
Deliveries should be made through the service entrance at the west side of the EIT building.
Student and campus group events must have a Sponsor from a department within UA Little Rock . This Sponsor must attend all rehearsals and events in their entirety. The Sponsor must be willing to be responsible for—and personally oversee—the setup and rehearsal process, as well as the restoration of the EIT Auditorium and all other spaces used to the original condition.